



Элитный коттеджный поселок Григорчиково.
Большая ухоженная территория, спортивные и детские площадки, пляж и выход к реке. Охрана и видеонаблюдение, приличное окружение, организация праздников на территории поселка с участием звезд эстрады.
Дом для круглогодичного проживания большой семьи, отличное состояние. Потолки больше 3-х метров.
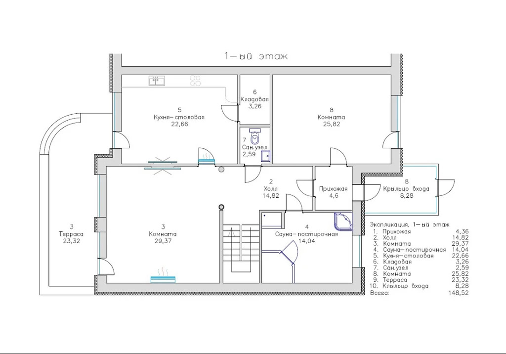
На 1 этаже: гостиная, кухня- столовая, сан узел с душевой кабиной и сауной, библиотека- спальня для гостей.
На 2 этаже: 3 спальни, гардеробная, сан узел, балкон с выходом из двух комнат.
Дорогой качественный ремонт: на полу плитка с подогревом, стены с венецианской штукатуркой, потолки более 3 метров.
Имеется подпол и чердак, навес для автомобиля, терраса, баня, беседка с мангалом для приготовления блюд на костре и шашлыков.
Ухоженный участок с множеством роз, кустарников, ландшафтный дизайн. Место для прогулок и отдыха в тени, небольшой водоем.
Подключены все центральные коммуникации: магистральный газ, свет, центральная канализация на поселок, вода, интернет.
Развитая инфраструктура, в 15 минут остановка общественного транспорта регулярные автобусы до м Домодедовская. В 2 км поселок Володарского вся городская инфраструктура: больница, поликлиника, школа, детские сады, магазины, ТЦ.
В собственности более 10 лет, 1 взрослый собственник
32500000 руб. | 492364 $ | 431482 €